Les faibles dimensions de la maison existante, les souhaits d’une pièce de vie ouverte sur le jardin, d’une chambre supplémentaire et d’un confort aux standards actuels servent de premières données.
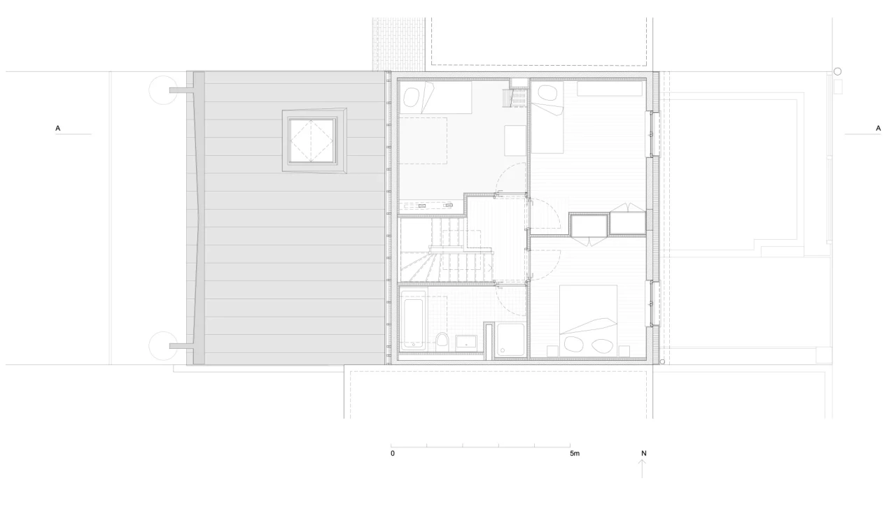
Au souhait d’un salon, proposition est faite d’une extension d’un seul niveau, développée sur toute la largeur de la parcelle. Celle-ci s’ouvre entièrement sur le jardin, sa toiture avancée est la prolongation de la nouvelle couverture de la maison originale. La typologie générale de la maison est retravaillée avec minutie, les circulations deviennent plus fluides et de nouvelles percées viennent aérer l’ensemble auparavant très engoncé. Une salle de bain et trois chambres optimisées s’installent à l’étage, permettant à chaque enfant d’avoir en grandissant un espace à lui. Côté boulevard, une plateforme surélevée, ceinturée d’une haie composée d’espèces indigènes, permet de franchir un seuil vers la sphère privée de la maison.
Pour répondre aux normes environnementales actuelles, la maison est isolée par l’extérieur en fibre de bois. Pour ne pas transgresser la composition de la façade existante, un travail sur les ouvertures existantes permet aux nouvelles d’en garder les proportions à l’étage et d’en augmenter la hauteur au rez-de-chaussée par suppression de l’allège.
Équipe :
Guillaume Lesage, Marine Beaumanoir
Projet :
Rénovation et extension d’une maison des années 60
Processus : Commande directe
Lieu : Rennes
Surface : 125m2
Planification 2018 – 2020
Exécution 2020 – 2021
Distinction :
Prix Architecture espaces Bretagne 2022 · catégorie "Transformer pour habiter"
Image : © Giaime Meloni