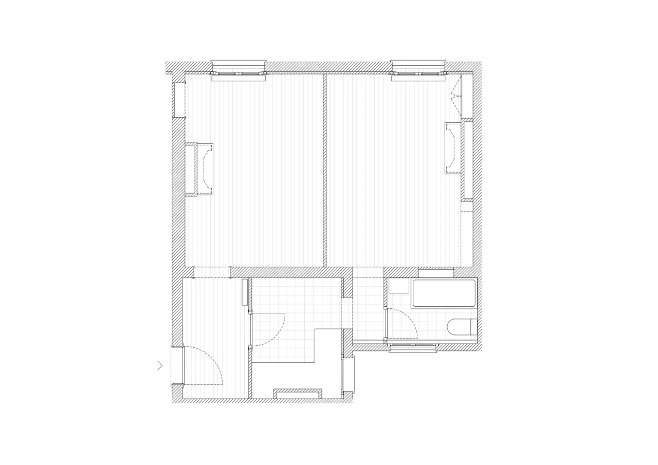
Les clients sont un jeune couple réalisant leur premier achat avec cet appartement de 42m2. Un grand mur porteur sépare le logement en deux parties, la première orientée sur une courette et comprenant l’entrée, la cuisine, un dégagement et la salle de bain. La seconde est composée de deux pièces de 13m2, bénéfiant de grandes ouvertures sur une large cour arborée, et offrant une vue dégagée sur la capitale.
Le projet propose de conserver le mur porteur existant, réalisant ainsi une économie conséquente, et permettant la réalisation de menuiseries sur mesure nécessaire à l’optimisation du logement.
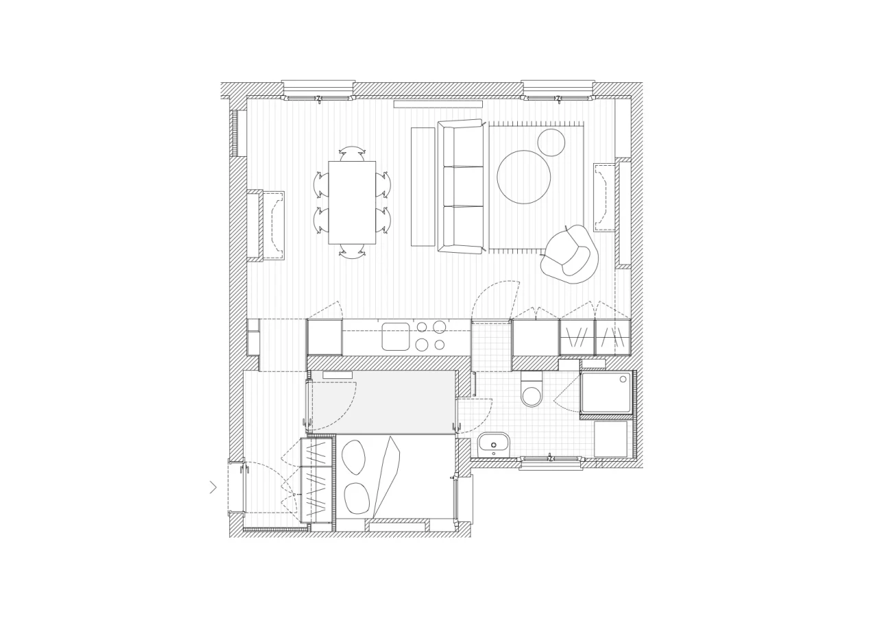
La disposition des pièces est modifée : la chambre et la salle de bain se retrouvent sur cour pour libérer une pièce de vie spacieuse sur la grande façade, et une grande bande de rangements optimisée prend place le long du mur porteur. L’ensemble des pièces communiquent entre elles, offrant une sensation de fluidité dans le logement.
Équipe :
Guillaume Lesage, Marine Beaumanoir
Projet :
Transformation complète d'un appartement Hausmannien à Paris
Processus : Commande directe
Lieu : Paris
Surface : 42.5m2
Planification 2019
Exécution 2020
Image : © Giaime Meloni